11-22-2018 08:18 AM
We are
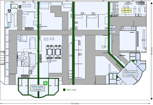
designing a stabile Wi-Fi Architecture for a small manufacturing company. This
wireless network needs to support seamless roaming for Mobile VoIP. The
building is 2000 square meters (50m x 38m) and 10 meters high. The
manufacturing area is separated by brick walls into 4 sections of 30m x 15m. The
other 20% is office space on one side of the building which is divided into two
stories. The second floor had a sheet metal floor over concrete.
In my first research I found that Ruckus has the product to fit our needs for this company. The challenge for is the choice for the most suited AP, the placement and how many would I need to cover the entire building.
I hope someone can give me a good directions for this Wireless design plan.
11-22-2018 08:39 AM
11-22-2018 08:59 AM
11-23-2018 03:01 AM
